Coltbridge Terrace
live:eat:cook
The inventive, idiosyncratic buildings of Fredrick Thomas Pilkington have fascinated since I first started studying architecture more than 30 years ago. The opportunity to work on one was compelling.
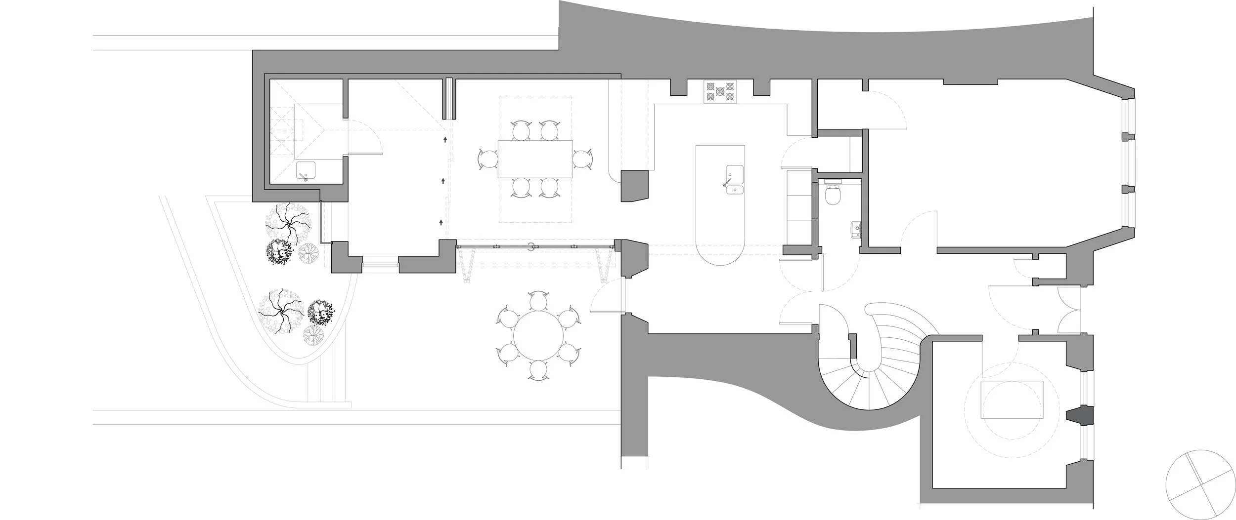
Synthesizing the 3 dimensional, arts and craft quality of his 1869, B Listed terrace house to inform the design of the new addition to the rear was the challenge to create a modern living environment for our Master of Wine client.
Rather than mimic the visual motifs of the existing, we explored the richness of form and complexity of experience adding in the opportunities modern technology allows to gather natural light to enhance the new living/cooking/eating space. The limited, subtle palette of materials references the existing house. From the front door we can now see through the entire depth of the house to the back garden. Further through the route to the new living space another choreographed view stretches through the framed opening from the kitchen, through the adjacent light filled dining space, through the adaptable play space and out to the terraced garden through the frameless glass oriel window that encloses a window seat. The eating space visually and physically combines with a landscaped courtyard which in turn filters up through landscaped terraces to the upper garden.
A triple glazed, 3m x 2m, raised, frameless glass rooflight collects the last of the evening sunlight bathing the eating space in golden light.
AWARDS
Shortlisted:
EAA Awards 2018 - Small Projects
Architect: David Blaikie Architects Project Architect: Michael Nelson Structural Engineer: McColl Associates Interior Design: Client Lighting Design: David Blaikie Architects Specialist Glass: Gray & Dick Kitchen: Kitchens International Wine Cellar: Spiral Cellars Ltd Photography: Paul Zanre
